Sauna im Schrankraum/ Dachschräge

Hier der Bereich wo Du technische Fragen stellen kannst und Deine eigene Erfahrungen für die Allgemeinheit veröffentlichen kannst.
Antworten
MatthiasR
Beiträge: 6
Registriert: 19. Januar 2026, 16:07

Sauna im Schrankraum/ Dachschräge

Beitrag von MatthiasR »

Hallo liebe Forengemeinde,

kurz zu uns: Conny & Matthias aus Österreich und wir werden demnächst unseren Traum vom Einfamilienhaus realisieren.
Dabei war initial ein Elternschlafzimmer mit Schrankraum geplant - dieser wird nun jedoch zur Sauna bzw. als zweiter Badzugang realisiert.

Ich habe vor die Sauna in Eigenleistung zu realisieren und habe dazu auch bereits die Website von Norbert durchstöbert :)
Dabei ist mir aufgefallen, dass der Abstand zur Wand mit ca. 2cm starken Latten realisiert werden würde?

Nun liest man oft von bis zu 10cm (Außenwände) bzw. 5cm (Innenwände) Abständen...
Was wäre nun wirklich zutreffend?

Habt ihr zudem weitere Tipps zu einer "Dachschrägen-Sauna" bzw. ggf. andere Anordnungs-Vorschläge? (Eckzugang oÄ).
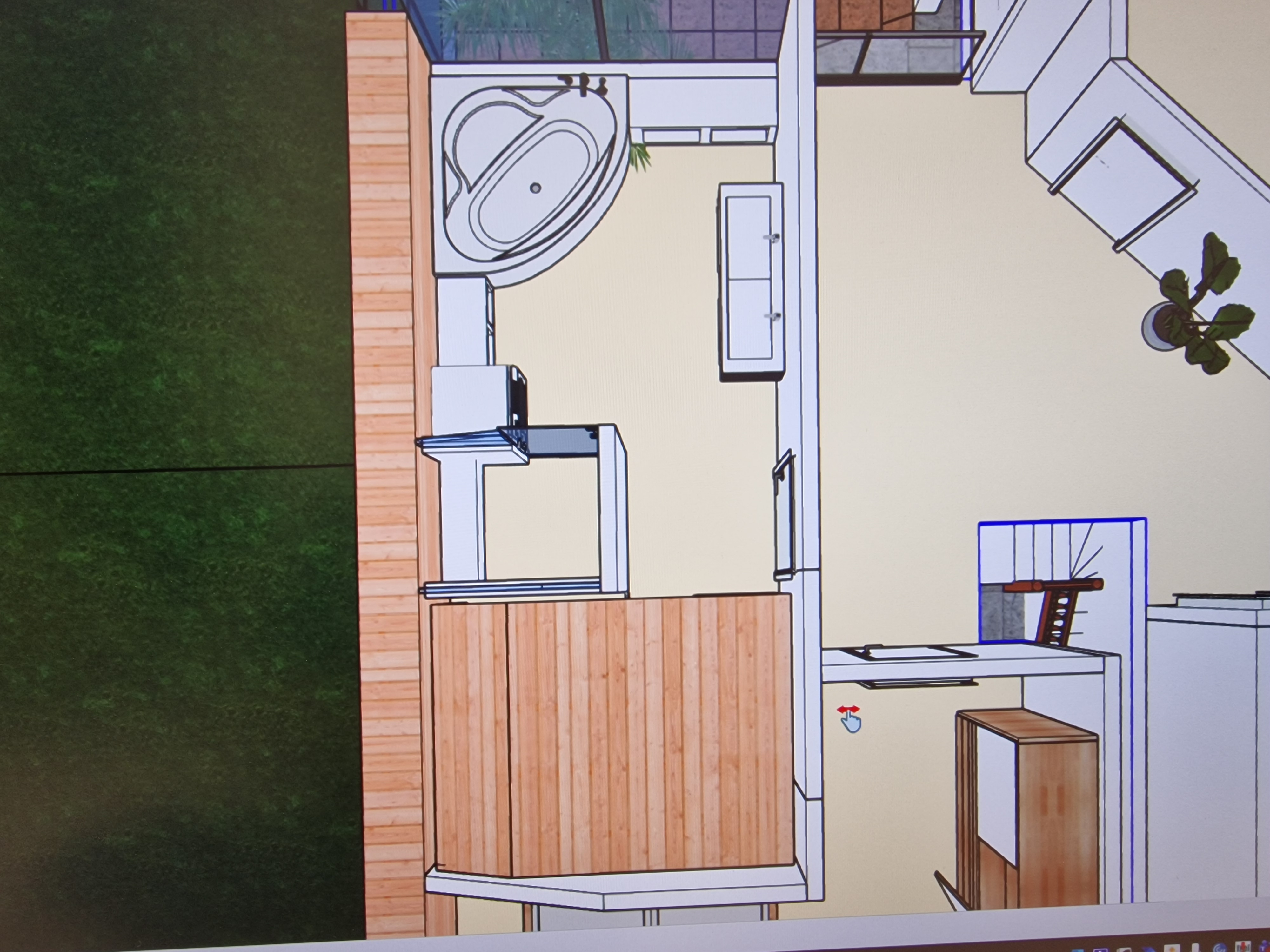
Dusche könnte noch nach rechts richtung Badewanne rutschen, siehe auch Fotos.

Ansonsten geplant:
- 9 kW Ofen
- Sollte für 2-4 Personen ausreichend sein
- Keine besonderen Extras notwendig

Glg Conny & Matthias
Sauna_Screen4.PNG
Sauna_Screen4.PNG (43.71 KiB) 18811 mal betrachtet
Sauna_Screen1.PNG
Sauna_Screen1.PNG (694.73 KiB) 18811 mal betrachtet
Sauna_Screen2.PNG
Sauna_Screen2.PNG (752.19 KiB) 18811 mal betrachtet
Shadow
Beiträge: 98
Registriert: 2. Oktober 2006, 19:58

Re: Sauna im Schrankraum/ Dachschräge

Beitrag von Shadow »

Hallo Matthias
Ein paar spontane Gedanken/ Anmerkungen
- Der Wandabstand hängt auch von Gegebenheiten ab, z. B wie ist die jeweilige Wand isoliert, ist überhaupt ein Luftaustausch aus dem dahinterliegenden Hohlraum vorhanden...
- willst Du die Front komplett verglasen? Dann würde ich tatsächlich über Position und Grundriss nochmal nachdenken - der "Ausblick" auf Tür/Wand und Waschmaschine ist ja mässig einladend...
- 9kw erscheint mir zuviel
- für 4 Personen etwas klein

Viele Grüße Shadow
MatthiasR
Beiträge: 6
Registriert: 19. Januar 2026, 16:07

Re: Sauna im Schrankraum/ Dachschräge

Beitrag von MatthiasR »

Vielen Dank für die rasche Antwort :)

Also die Außenwand besteht aus 25er Ziegel und einer 20er EPS Dämmung.
Ich hätte jetzt pauschal zu allen Seiten einen "Lattenabstand" (ca. 2cm) eingehalten...keine Ahnung leider, ob da der Luftaustausch vorhanden ist?:/
Vl noch anzumerken: Im Haus und somit auch in diesem Bad befindet sich eine Wohnraumlüftung.

Das weglassen der Front hätte ich tatsächlich nur aufgrund der beengten Platzverhältnisse gemacht (Glas nimmt weniger weg als der Wandaufbau)

Ich denke aber auch, dass hier eine Ecksauna wsl besser passt bzw dass ich die Wand richtung Dusche raufrutsche und die Wand richtung Svhlafzimmer ein wenig reinrutsche.

Aber was meint Ihr zu den 2cm Wandabstand...ausreichend?

Glg Matthias
Shadow
Beiträge: 98
Registriert: 2. Oktober 2006, 19:58

Re: Sauna im Schrankraum/ Dachschräge

Beitrag von Shadow »

Zum Thema Hinterlüftung kannst Du mal mit Hilfe eines U-Wert Rechners (einfach mal googeln, gibt es kostenfrei im Netz) prüfen wo bei Deinem konkreten Wandaufbau der Taupunkt liegt. Damit hast Du einen guten Anhaltspunkt wo welche Feuchtigkeit anfallen kann und ob die Sauna aktiv hinterlüftet werden sollte. Wobei die kontrollierte Wohnraumlüftung ja eine sehr gute Vorraussetzung ist.
Was den Grundriss angeht: wenn Du noch so flexibel bist würde sich aus meiner Sicht eine kleine Rochade anbieten.
- die untere Tür etwas nach oben schieben
- dann die Dusche dahin wo die Wama ist
- daneben um 90 Grad gedreht halb unter die Dachschräge die Sauna mit Eckeinstieg oder Blick in das Bad
- die Waschmaschine dahin wo momentan die Dusche ist (über der braucht man ohnehin keine volle Raumhöhe)
MatthiasR
Beiträge: 6
Registriert: 19. Januar 2026, 16:07

Re: Sauna im Schrankraum/ Dachschräge

Beitrag von MatthiasR »

Hi,

danke für die hilfreichen Tipps - hat dazu geführt, dass wir nochmal alles hinterfragen und umplanen :)

- Hätte eine AWT1105B 200x200 gefunden - hat eine Innenliege-Länge von ca. 1,90m.
- Der Wandaufbau von 46mm macht mich ein wenig stutzig..habe hier im Forum eher von ca. 8cm gelesen?!
- Wandabstand zur Außenwand liegt nun bei über 70cm, dann geht sich das auch mit der Dachschräge aus / ich kann einen Standard-Sauna-Bausatz verwenden.
- Wandabstand zu den Innenwänden wäre nun 5cm.
- Dusche und Sauna haben nun beide Blick Richtung Garten / außen
- Waschmaschine ist nur ein "Platzhalter"...waschen im HWR und würden lediglich einen Anschluss vorsehen und aber dort eine Sitzbank positionieren.

Sauna neben Dusche geht sich leider nicht aus :(

Wie seht ihr den neuen Vorschlag? :)

Nachtrag:
Oder ggf die Sauna doch im Eigenbau an die Dachschräge gegenüber, sodass der schmale (ca. 78cm) Raum zwischen Sauna und Wand besser nutzbar ist (auf der 2,60m Raumhöhe Seite).
Damit da aber die Liegen optimal positioniert wären, müsste der Ofen unter der Dachschräge stehen. Hitzeschutz / Blech / Glas an Decke ausreichend oder hat das auch negative Auswirkungen auf die Zirkulation?

Glg Matthias
Dateianhänge
1000139742.jpg
1000139742.jpg (1.73 MiB) 15497 mal betrachtet
1000139741.jpg
1000139741.jpg (1.98 MiB) 15497 mal betrachtet
1000139740.jpg
1000139740.jpg (1.75 MiB) 15497 mal betrachtet
Shadow
Beiträge: 98
Registriert: 2. Oktober 2006, 19:58

Re: Sauna im Schrankraum/ Dachschräge

Beitrag von Shadow »

Na da habt Ihr ja tatsächlich nochmal ordentlich rumgeschoben...
Wenn jetzt eine Sauna von der Stange reinpasst ist das durchaus von Vorteil. Bezüglich des von Dir ins Auge gefassten Modells fallen mir zwei Punkte auf:
- Die Wandstärke, das hat Dich ja auch schon ins grübeln gebracht. 46mm ist schon recht dünn, zumal Eago auf der Seite mit 30mm Dämmung wirbt. Wenn es sich also um eine Elementsauna und nicht um eine Massivbauweise handelt bleibt ja für das Holz je nur 8mm innen und aussen !? Gängig sind tatsächlich eher 65mm und mehr. Vielleicht findest Du im Netz ja Erfahrungen von Besitzern einer Eagosauna, die zur Qualität berichten (Aufheizdauer, Verzug..) Du willst ja mit der Sauna nicht Dein Bad heizen...
- Punkt zwei schließt sich da an. Die großen Glasflächen...das sieht Klasse aus, aber Sauna lebt davon dass eine gewissen Menge Holz da ist die Wärme aufnimmt und sanft wieder abgibt. Wenn gleich zwei komplette Wände aus Glas sind und auch die verbleibenden Wände nur sehr dünn mit Holz beplankt sind bleibt da nicht viel. Die direkt vom Ofen abgegebene Wärme ist viel "schärfer" und wird von vielen Menschen als unangenehm empfunden. Ausserdem geht das ordentlich zu Lasten der Ofenleistung. Im allgemeinen sagt man dass pro m² Glas ein kW Leistung zur aus dem Saunavolumen errechneten Grundleistung hinzugerechnet werden sollten...das schlägt sich in der Aufheizdauer und im Stromverbrauch nieder, eventuell erreicht man die gewünschte maximale Temperatur nicht mehr.
Vor diesem Hintergrund würde ich mir überlegen ob es nicht ausreicht wenn die Wand Richtung Raum aus Glas ist und die Seite Richtung Dachschräge dann in Holz zu wählen. Auf der Seite gibt es ja eh nichts zu sehen und dann kannst Du dort z.B ein Regal oder Schrank für das Saunazubehör zu integrieren.

VG und weiter viel Erfolg bei Deinem Vorhaben
MatthiasR
Beiträge: 6
Registriert: 19. Januar 2026, 16:07

Re: Sauna im Schrankraum/ Dachschräge

Beitrag von MatthiasR »

Hello,

danke nochmal vorweg für die Hilfestellungen und Inputs - hat uns bisher sehr geholfen :)

- Super, dann schau ich am Abend nochmal wg Saunen mit größerer Wandstärke.
- Stimmt, die große Glasfläche am Eck finde ich auch nicht notwendig...geht im wesentlichen nur darum ein "Blickfeld" nach außen zu haben. Da würde vmtl auch eine kleinere Glasfront reichen.

- Bzgl Schrank und Regalposition hätte ich die Sauna nun - um einen visuellen Eindruck zu bekommen - nochmal auf die andere Seite geschoben.
Da wärs dann halt fix wieder Eigenbau :D
Und der Hitzeschutz an der Innendecke der Sauna wäre dann halt ein Thema...
--> 74cm wären dann noch nutzbar für kleine Regale oÄ.
--> 165cm wäre die Höhe innen an der Schräge (habe 10cm zur Außenwand nun eingeplant)

Glg Matthias
20260128_122634.jpg
20260128_122634.jpg (1.49 MiB) 13911 mal betrachtet
20260128_122603.jpg
20260128_122603.jpg (1.65 MiB) 13911 mal betrachtet
Shadow
Beiträge: 98
Registriert: 2. Oktober 2006, 19:58

Re: Sauna im Schrankraum/ Dachschräge

Beitrag von Shadow »

Ofen unter der Schräge ist natürlich schwierig
Auch wenn man das manchmal auf Bildern im Netz sieht entspricht es nicht den Vorgaben bezüglich Wandabständen.
Diesen schmalen Gang neben der Sauna fände ich nicht optimal, man kann zwar vorne ein Regal stellen, aber dahinter wäre verlorener Raum.
Ist denn Selbstbau für Dich eine Option oder nicht? Je nachdem ergäben sich aus meiner Sicht unterschiedliche Möglichkeiten.
Habe mal was skizziert, das ist einfacher als das zu beschreiben. Dabei habe ich auch nochmal die Dusche mit einbezogen. Es ist natürlich individuelle Geschmackssache, aber mein Fall wäre die Dusche vor dem Fenster nicht. Dadurch wird es am Waschtisch so eng und nachdem Duschen immer die Fenster abledern...

Daher hier mal drei Varianten bei denen die Dusche wieder an der ursprünglichen Position liegt

Bild
Variante 1: Standardsauna, aber verlorener Raum unter der Schräge
Variante 2: geht etwas unter die Schräge und ist dafür nicht so tief, also Eigenbau bzw Maßanfertigung durch einen Fachmann
Variante 3: nutzt den vollen Platz unter der Schräge, das wäre mein Favorit

Letztlich hängt es auch davon ab wieviele Leute gleichzeitig in die Sauna gehen, wie die Wünsche bezüglich liegen/sitzen/oben/unten ausschauen und was der Spaß kosten darf
Dateianhänge
IMG_20260129_164541~2.jpg
IMG_20260129_164541~2.jpg (2.4 MiB) 12079 mal betrachtet
MatthiasR
Beiträge: 6
Registriert: 19. Januar 2026, 16:07

Re: Sauna im Schrankraum/ Dachschräge

Beitrag von MatthiasR »

Hey,

Danke, dass Du da sogar Skizzen angefertigt hast.
Wirklich eine tolle Hilfe hier im Forum :)

Variante 3 wirds denk ich wirklich werden.
Gefällt uns anhand der Sketchup Skizzen am allerbesten.

Anders als im untenstehenden Foto würden wir dann nur das Türelement und das links daneben verglasen.
Bei der Dusche auch nur die Türe.
Rest Mauerwerk bzw. herkömmlicher Sauna-Wandaufbau.
Badewanne wird wsl nun auch eher eine Ecklösung :)

Der einzige Wermutstropfen ist, dass wir die Sauna gar nicht so breit brauchen. Werden sie zwar öfter zu zweit nutzen und ggf selten zu viert aber mehr Personen sind unwahrscheinlich. Trotzdem würde es psychologisch "weh tun", wenn dahinter ein ungenutzter Hohlraum frei bleiben würde 😄😄
Glg Matthias
20260130_134818.jpg
20260130_134818.jpg (1.52 MiB) 11068 mal betrachtet
20260130_134751.jpg
20260130_134751.jpg (1.57 MiB) 11068 mal betrachtet
MatthiasR
Beiträge: 6
Registriert: 19. Januar 2026, 16:07

Re: Sauna im Schrankraum/ Dachschräge

Beitrag von MatthiasR »

Hello,

Also vmtl wirds ein Eigenbau werden.
Hätte gerne einen vernünftigen Wandaufbau und die Türe plus Sichtelement - finde da nix vernünftiges im Netz :)

Habe noch ein paar Fragen:
- Hat jemand Erfahrung mit Zirbe als Innenverkleidung?
- Wird Fichte bei den Banken echt spürbar heißer und sollte man da Espe nehmen?
- Hätten in der Dachschräge ursprünglich ein 78x118cm Dachfenster gehabt, das wir nun ganz rausgenommen haben. Würdet Ihr Euch über zumindest ein 78x55cm Fenster mit Fixverglasung "drüber trauen" im Eigenbau oder eher nicht.
Norbert hatte das ja mit einem normalen Fenster offenbar problemlos umgesetzt.

Glg Matthias
Antworten